Gestioni Immobiliari Progetti
Il Borgo Verde

via Bovio
Busto Arsizio

trilocali, quadrilocali

Vivere nel comfort immersi nella natura

La nuova residenza Borgo Verde nasce in un contesto residenziale tranquillo e immerso nel verde, come parte di un nuovo progetto che dà vita a un moderno complesso abitativo.
A soli pochi minuti dalle Ferrovie Nord, il Borgo unisce la comodità della posizione con la qualità di soluzioni abitative pensate per garantire elevati standard di comfort ed efficienza energetica.

...

Uno scorcio di modernità

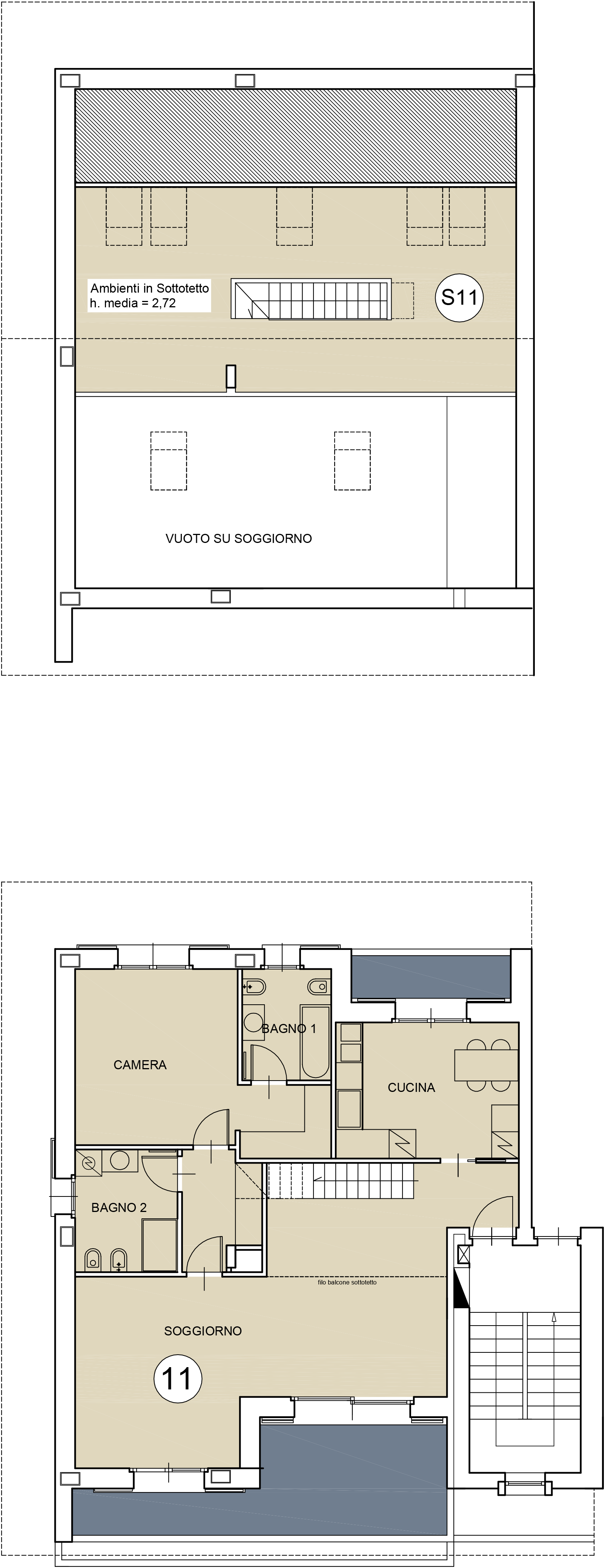
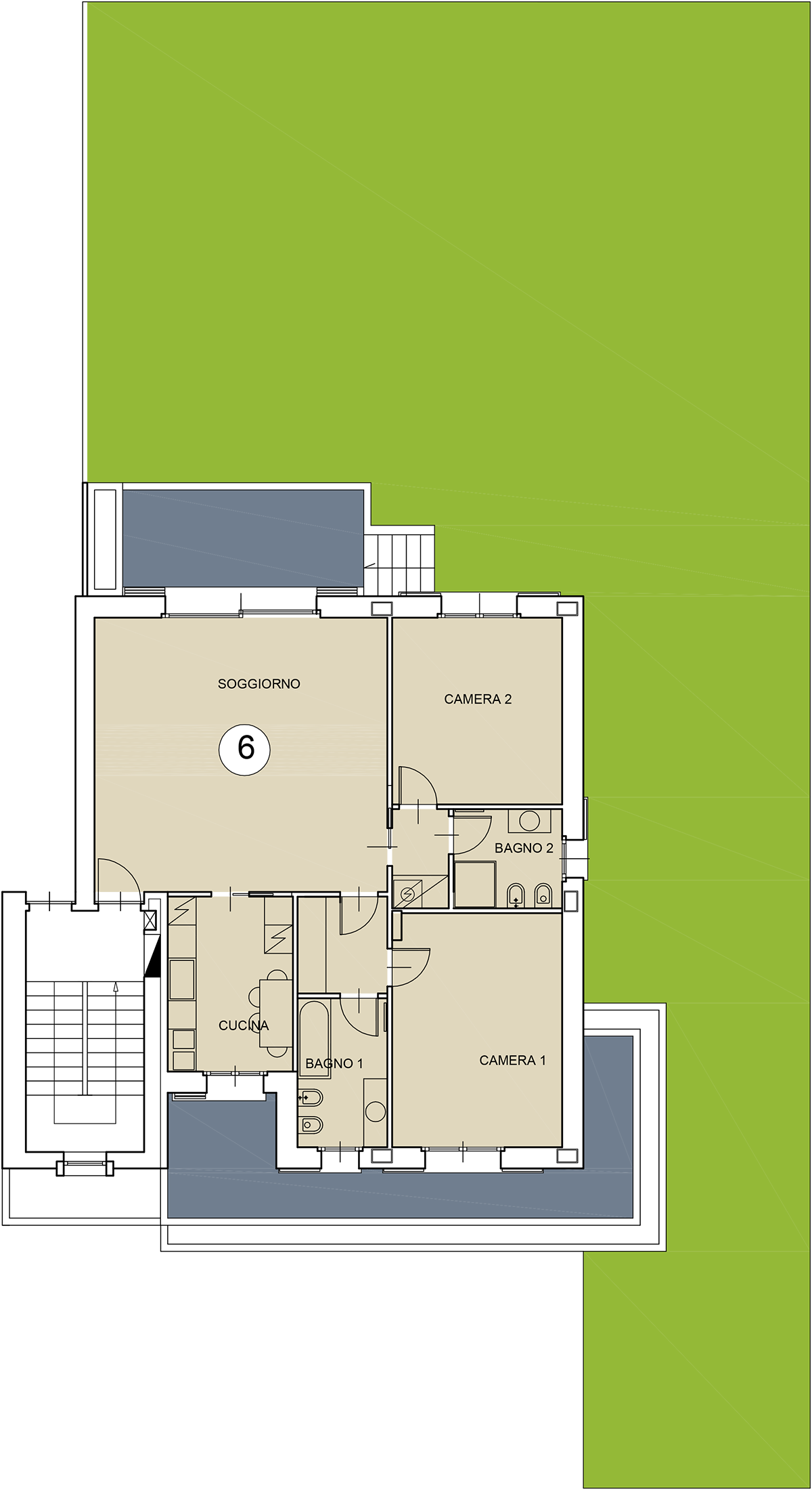
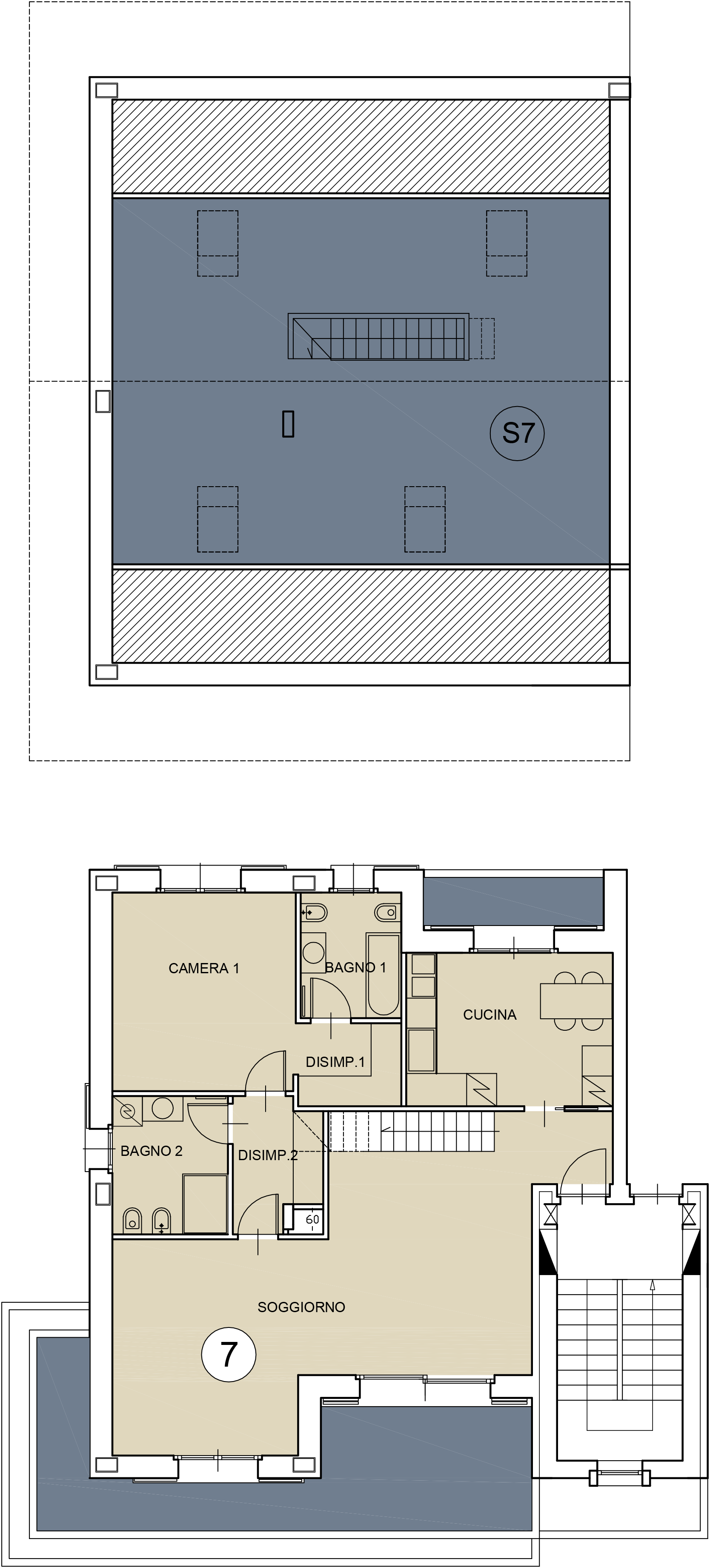
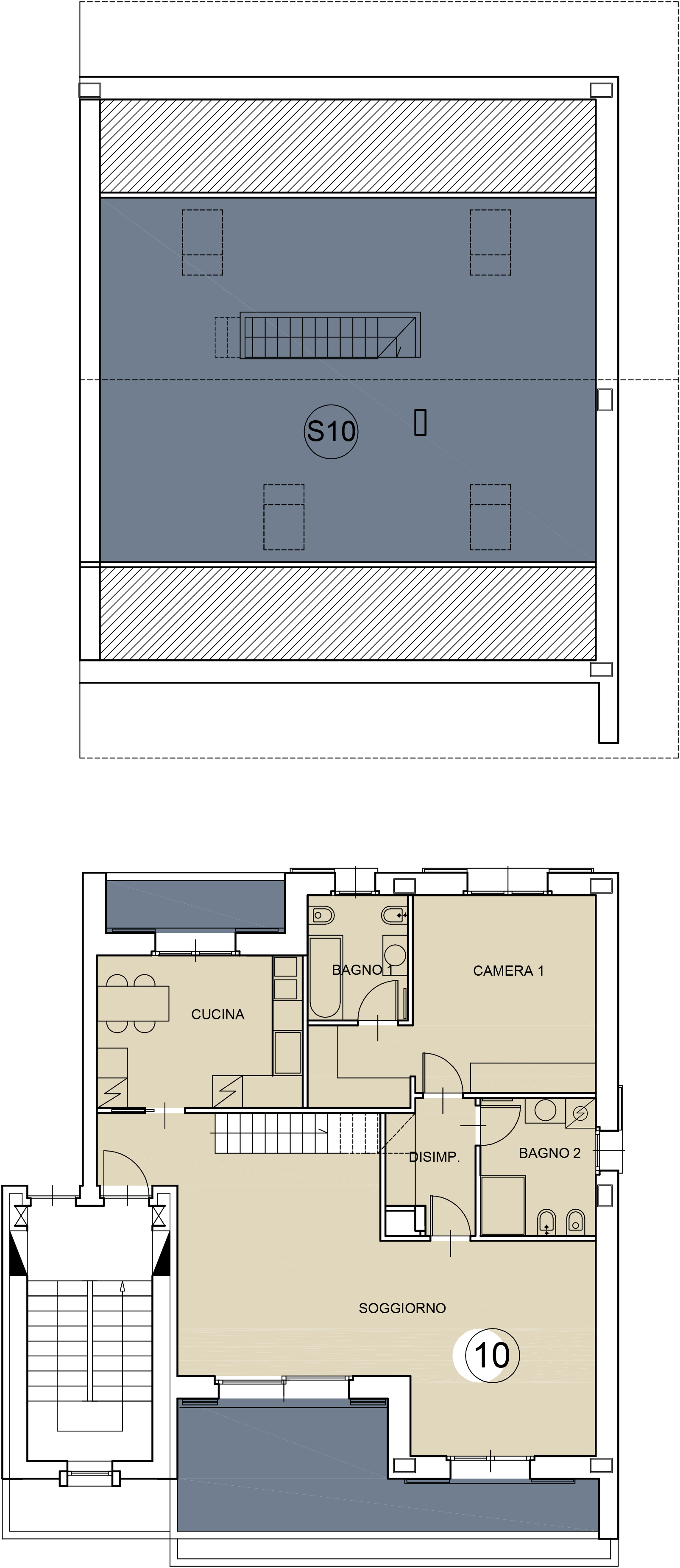
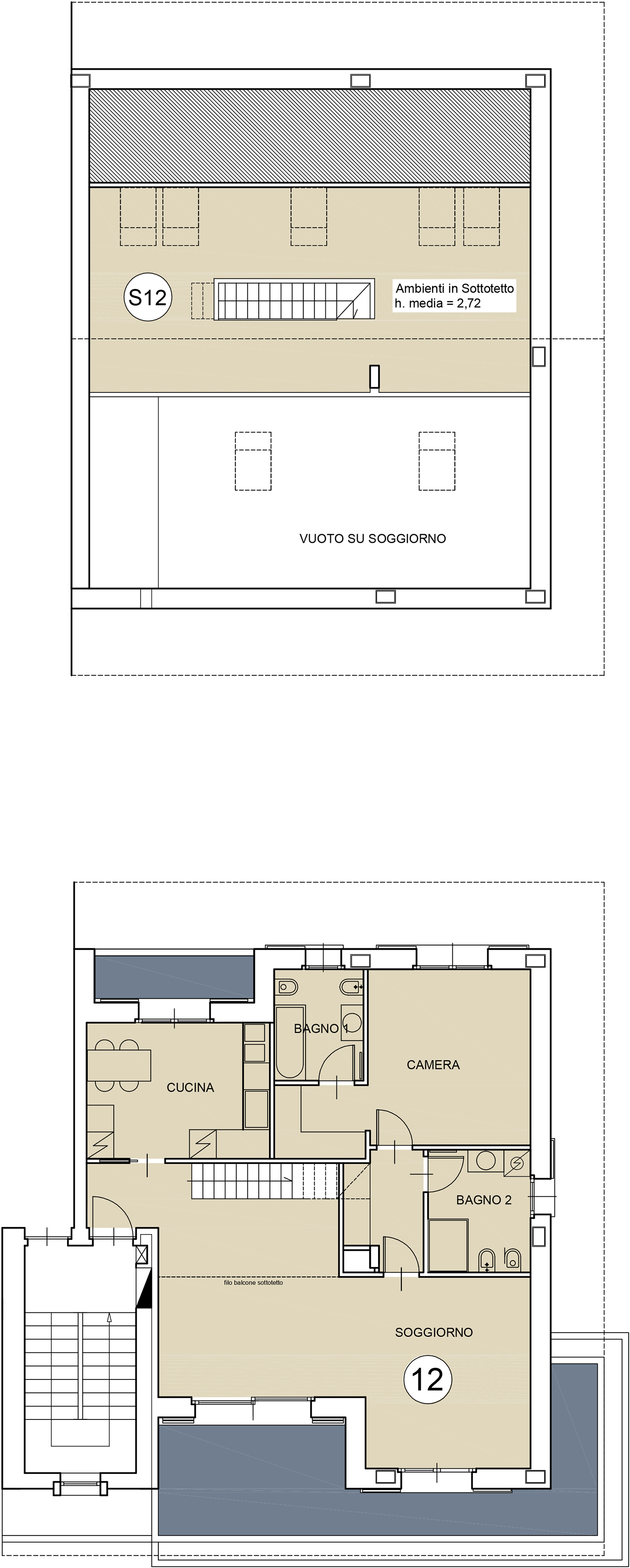
Gli appartamenti, luminosi e funzionali, si sviluppano su più tipologie: al piano rialzato con balcone, terrazzo e giardini privati, al primo piano con soppalchi o ampi sottotetti, ideali per creare ambienti personalizzati e versatili.

...
...
...

Dettagli di stile

Ogni soluzione è completata da box doppi e cantine, a conferma di un’offerta abitativa pensata per il massimo della praticità.
All’interno, la qualità si esprime attraverso un capitolato ricco e personalizzabile, con un’ampia scelta di pavimenti, rivestimenti, porte e componenti bagno. Non solo estetica, ma anche tecnologia: ogni unità sarà dotata di pompa di calore autonoma, riscaldamento a pavimento, predisposizione per impianto anti-intrusione, raffrescamento e un sistema di pannelli fotovoltaici per un’integrazione energetica sostenibile.

In fase di realizzazione è inoltre possibile personalizzare la distribuzione degli spazi interni, creando così la casa davvero su misura.
Borgo Verde è la scelta ideale per chi cerca un’abitazione moderna, efficiente e immersa nella natura, senza rinunciare alla comodità dei collegamenti e alla qualità della vita quotidiana.

Richiedi informazioni

...

Telefono

M 320 5315127 / 333 1336144 - T 0331 634393

Indirizzo

Via C. Battisti 9 - 21052 Busto Arsizio (VA)

© 2021 - 2026 GESTIONI IMMOBILIARI PROGETTI
Powered by ids sas